【茨城県常陸大宮市上小瀬】☆販売価格:78万円☆想定利回り:高利回りが期待できるポテンシャル物件 (投稿ID : 1n65sx)

7
お気に入り登録
7
お気に入り登録済み
お気に入りに登録しました
ログインが必要です
更新2026年2月21日 15:40
作成2026年2月19日 19:01
【茨城県常陸大宮市上小瀬】☆販売価格:78万円☆想定利回り:高利回りが期待できるポテンシャル物件の画像
【茨城県常陸大宮市上小瀬】☆販売価格:78万円☆想定利回り:高利回りが期待できるポテンシャル物件 - 常陸大宮市
【茨城県常陸大宮市上小瀬】☆販売価格:78万円☆想定利回り:高利回りが期待できるポテンシャル物件 - 不動産売買(マンション/一戸建て)
【茨城県常陸大宮市上小瀬】☆販売価格:78万円☆想定利回り:高利回りが期待できるポテンシャル物件 − 茨城県
【茨城県常陸大宮市上小瀬】☆販売価格:78万円☆想定利回り:高利回りが期待できるポテンシャル物件 - 不動産

■□■ 常陸大宮市上小瀬エリア × 自然環境を活かす平屋投資 ■□■

☆★ 広大な敷地×山間立地 ゆとり重視の戸建て運用 ★☆

◎ 物件概要

茨城県常陸大宮市上小瀬に位置する、
山間エリアの平屋建て物件です。

周辺は自然に囲まれた静かな住環境。
敷地にゆとりがあり、都市部では得がたい開放感が魅力です。

建物は平屋構造のため、

・高齢世帯向け賃貸
・セカンドハウス需要
・週末利用型の貸し出し
・資材置き場や趣味利用

など、用途の方向性を柔軟に検討できます。

◎ 立地特性

山の中に位置し、周辺は閑静な住宅環境。
車移動が前提となるエリアですが、
その分、静けさや敷地の広さを求める層に適しています。

家庭菜園やアウトドア志向の入居者との相性も良く、
“広さ”を付加価値として訴求できるタイプの物件です。

◎ エリア特性コメント

常陸大宮市は自然環境が豊かなエリアで、
都市部とは異なるライフスタイル需要が存在します。

広い敷地を備えた平屋物件は流通も多くはなく、
再生・整備次第で独自性のある運用が可能。

低予算帯からスタートし、
自然環境を活かした活用を検討したい投資家の方におすすめの一件です。

■□■ “環境価値を活かして運用する”郊外型平屋投資をお探しの方へ ■□■

・築年数不詳
・現況有姿(残置物含む)
・境界非明示
・司法書士は売主指定となります。

価格 78万円
ジャンル 中古(マンション/一戸建て)
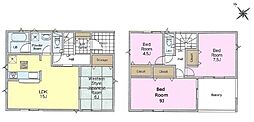
間取り/面積 - 土地:1115.43㎡/建物:584.43㎡
階建 - / 2階建
築年数
地域
常陸大宮市 - 上小瀬
JR水郡線 - 常陸大宮駅
住所 茨城県常陸大宮市上小瀬4121
連絡先 電話番号
投稿者にメールで問い合わせ

※問い合わせは会員登録とログイン必須です

注意事項

ジモティーからの注意事項

トラブルの際は 警察等の捜査依頼に積極的に協力しております。
ご相談は こちら

詐欺やトラブルにご注意ください

投稿者 すまいる不動産
男性
投稿: 122
身分証
電話番号
法人書類
宅建書類
認証とは
鳥取県東部・中部を中心として、土地・一戸建て・マンション・アパート・収益不...
評価

中古(マンション/一戸建て)(不動産売買(マンション/一戸建て))の不動産の関連記事

【茨城県常陸大宮市上小瀬】☆販売価格:7... 茨城 住宅情報 を見ている人は、こちらの記事も見ています。

すまいる不動産さんのその他の投稿記事

ご利用ガイド
新着投稿の通知をメールで受け取る

登録した条件で投稿があった場合、メールでお知らせします。

キーワード
+ さらに詳しい条件を登録
カテゴリ
エリア
オンライン決済
配送可能
ー 閉じる
メールアドレス

利用規約 をご確認の上、登録をお願いします。