カーポートLIXIL3台用カーポートフーゴF 72-50サイズ商品代施工費税込み激安愛媛県外構工事駐車場EXたくみ (タクミ) 南伊予のその他の中古あげます・譲ります|ジモティーで不用品の処分中古 売ります・あげます
地元の掲示板 ジモティー


カーポート LIXIL3台用カーポート フーゴF 72-50サイズ 商品代 施工費税込み 激安 愛媛県 外構工事 駐車場 EXたくみ(投稿ID : 1lcfao)

作成2026年1月10日 07:37

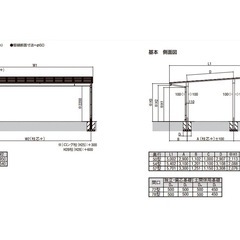
ご覧いただきありがとうございます^ - ^ 愛媛県松山市を中心にお家の外構工事の会社をしておりますEXたくみの安田と申します。 今回掲載させて頂いたのはLIXILの3台用カーポート'フーゴF,72-50(7187×5002)標準柱、普通ポリカーボネート仕様です。 税抜き定価で¥1471500するお品ですので、めちゃくちゃお買い得になっております^ - ^ この他にも全サイズ、種類に対応可能ですので、ご不明な点がございましたらお気軽にお問い合わせ下さい。 掲載している金額は商品代、施工費税込みの金額ですのでこれ以上にプラスで費用がかかることはございませんのでご安心ください。

商品価格950,000円
配送料- 円
配送可能地域松山市
ジャンル-
受け渡し場所
オンライン決済でご購入いただけます。
ジモティーにお知らせください

左の記事に問題がある場合、該当する項目を
選択し詳細を記入してください。

※通報していただいた内容への返答は出来ません。

投稿者
男性
投稿: 72
5.0(123)
身分証
電話番号
認証とは
初めまして、愛媛県松山市でお家の外構工事の小さな会社を経営している'タクミ,と申します。 ...

この度は大変お世話になりました。スムーズに取引させていただきました。また機会があり...

良い
かはこ

返信遅くなりました🙇‍♀️ ご親切に、どうもありがとうございました😊

その他の売ります・あげますの関連記事

カーポート LIXIL3台用カーポート フーゴF... 愛媛 中古あげます・譲りますを見ている人は、こちらの記事も見ています。


サムネイル
安全靴
市坪駅
28㎝ 中古なので汚れあります。
サムネイル
安全靴
市坪駅
28㎝ 中古なので汚れあります。
サムネイル
ハーネス&安全帯
市坪駅
ハーネス 安全帯 中古なので傷や汚れはありま...
サムネイル
道具セット
市坪駅
シノ 2 モンキー 2 '(小 1) スケー...
サムネイル
★生産者直売 無農薬シュークワーサー3...
北久米駅
★無農薬シュークワーサー800円/3Kg生産...
サムネイル
めぐリズム
梅本駅
残り11枚 タイミングがあえば近くまでお持...
サムネイル
【オンライン決済・配送可】【美品】門形...
松山市
最大吊り荷重1tの強力型、アルミ製で軽量です...
サムネイル
≪寮無料・月収32.5万円・派遣社員≫...
徳島県
【高時給1400円!】ハム・ソーセージの製造...
サムネイル
☆折りたたみ式 キャリーカート
衣山駅
折りたたみ式のキャリーカートです。 軽量で...
サムネイル
ロケットストーブ🔥(焚き火缶)⑤
土居田駅
ペール缶で作るロケットストーブ(焚き火缶) ...
サムネイル
【無料】屋内保管もみ殻さしあげます(宇...
宇和島駅
宇和島市津島町上畑地で、家庭菜園・農業・ガー...
サムネイル
アルミ脚立 7尺
大西駅
アルミ脚立 7尺になります。 交通費を頂けた...
サムネイル
ピカピカチューブ 10m×2本 ソーラ...
大西駅
ピカピカチューブ 10m×2本 ソーラー付き...
サムネイル
帽子用 汚れ防止テープ【他の有料商品ご...
本町六丁目駅
ご覧いただきありがとうございます。 帽子を汚...

タクミさんのその他の投稿記事:


サムネイル
【オンライン決済・配送可】カーポート ...
南伊予駅
ご覧いただきありがとうございます。 四国化成...
サムネイル
【オンライン決済・配送可】愛媛県 松山...
南伊予駅
ご覧いただきありがとうございます。 今回ご紹...
サムネイル
【オンライン決済・配送可】愛媛県 外構...
南伊予駅
LIXILから、大人気のウッドデッキシリーズ...
サムネイル
【オンライン決済・配送可】愛媛県 外構...
南伊予駅
ご覧いただきありがとうございます^ - ^ ...
サムネイル
溶接面 かぶり面 ヘルメット装着タイプ...
南伊予駅
溶接をする際に使用するお面です。 手持ちのタ...
サムネイル
【オンライン決済・配送可】物置 外構工...
南伊予駅
イナバ物置から、床付きバイク倉庫のご紹介です...
サムネイル
【オンライン決済・配送可】カーポート ...
南伊予駅
ご覧いただきありがとうございます。 YKKA...
サムネイル
【オンライン決済・配送可】カーポート ...
南伊予駅
LIXILから、大人気商品の2台用カーポート...
サムネイル
【オンライン決済・配送可】お洒落外構 ...
南伊予駅
LIXILのガーデンルーム'サニージュ,のご...
サムネイル
【オンライン決済・配送可】テラス屋根 ...
南伊予駅
ご覧いただきありがとうございます^ - ^ ...
サムネイル
【オンライン決済・配送可】カーポート ...
南伊予駅
ご覧いただきありがとうございます。 YKKA...
サムネイル
【オンライン決済・配送可】駐車場 洗車...
南伊予駅
ご覧いただきありがとうございます^ - ^ ...
サムネイル
外構工事 エクステリア 新築 リフォー...
南伊予駅
ご覧いただきありがとうございます。 愛媛県松...
サムネイル
外構 お洒落 エクステリア 新築 リフ...
南伊予駅
ご覧いただきありがとうございます^ - ^ ...
サムネイル
【オンライン決済・配送可】カーポート ...
南伊予駅
ご覧いただきありがとうございます。 LIXI...
ジモティーご利用ガイド
インタビュー