■物件種別:店舗事務所
■築年月(築年数):1976年05月(築50年)
■敷金:2ヶ月
■礼金:1ヶ月
■保証金:-
■償却・敷引:-
■住宅保険:不要
■更新料:-
■専有面積:113.94m²
■保証会社:
加入要
保証会社名:全保連
保証会社利用料:初回加入料:賃料総額の100% 更新料:賃料総額の10%/1年
■所在階:1階
■建物階数(地上/地下):2階/0階
■間取り詳細:-
■総戸数:1戸
■バルコニー面積:0.0m²
■主要採光面:北
■現況:空家
■建物構造:木造
■契約期間:3年間
■契約形態:定期借家権
■管理人勤務形態:-
■管理形態:-
■管理組合:-
■管理会社:-
■駐車場:
状態:空有
空き台数:2台
料金:無料
物件からの距離:0m
備考:-
■引渡/入居可能時期:即時
■取引態様:仲介
■その他費用:-
■取扱い不動産会社:
株式会社大和興産
広島県広島市安佐北区可部4丁目11-5
082-814-2257
広島県知事(10)第5724号
(公社)西日本不動産流通機構、中国地区不動産公正取引協議会、(公社)広島県宅地建物取引業協会、(公社)全日本不動産協会広島県本部
営業時間:09:00〜17:30
定休日:毎週水曜日、GW、お盆、年末年始
■情報登録日:2025年04月15日
■情報有効期限:2026年01月14日
■法令上の制限:-
■備考:要備考確認。現状渡し。DIY相談可。住居設備は機能せず、事務所・店舗・倉庫・物置として。原則定借3年
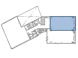
※現状渡しです(間取り図の1Fの緑の箇所は床が抜けており、通りにくくなっております)。DIY相談可能。住居設備は機能していない為、使用されたい場合は借主様にてご対応いただく形となります。事務所・店舗・倉庫・物置としての物件をお探しの方へ※賃料相談可能です※
広島県広島市安佐北区亀山4丁目 (投稿ID : h_1264480007386)
更新2025年11月3日 09:15
作成2025年9月19日 01:43
| 家賃 | 5.0万円 |
| 管理費等 | - |
| ジャンル | - |
| 敷/礼 | 2ヶ月 / 1ヶ月 |
| 間取り/面積 | - / 113.94m² |
| 階建 | 1 / 2階 |
| 築年数 | 築50年 |
| 住所 | 広島県広島市安佐北区亀山4丁目 |
| 交通 |
JR可部線 あき亀山駅 徒歩11分 JR可部線 河戸帆待川駅 徒歩14分 |
| 提供元 | LIFULL HOME'S |
電話で問い合わせの場合
通話無料(携帯・PHS)
0037-634-90960
問い合わせ番号(9桁)
53129-1449
音声案内に従って入力してください
※光IP電話、及びIP電話からはご利用になれません
※定休日や営業時間外にてお電話がつながらない場合は、お問合せフォームよりお問合せください
(スマホ版表示:お電話によるお問合せは、店舗営業時間内にお願いします)
※定休日や営業時間外にてお電話がつながらない場合は、お問合せフォームよりお問合せください
(スマホ版表示:お電話によるお問合せは、店舗営業時間内にお願いします)
レンタルオフィスの不動産の関連記事
広島県広島市安佐北区亀山4丁目 広島 住宅情報 を見ている人は、こちらの記事も見ています。